The layout of beams for a new pan supply tank free AutoCAD file|CADBULL
Description
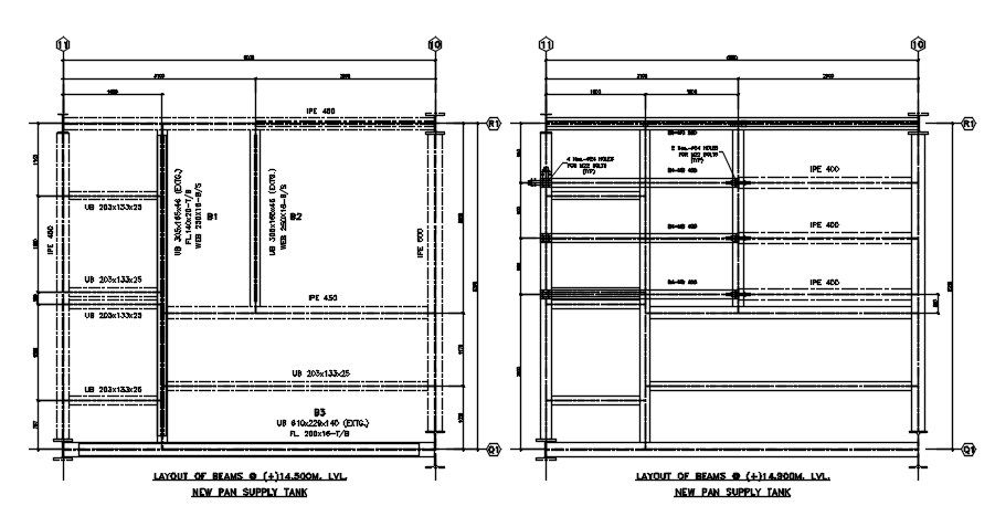
The layout of beams for a new pan supply tank is given in this free 2D AutoCAD DWG drawing. Sectional details are clearly given in this drawing file. The layout of beams for a new pan supply tank details and drawing section details are given in this DWG file. This Cad drawing file is very useful for civil engineers and structural engineers. Download the AutoCAD 2D DWG file. Thank you so much for downloading the DWG file from the cadbull website.

Uploaded by:
AS
SETHUPATHI

